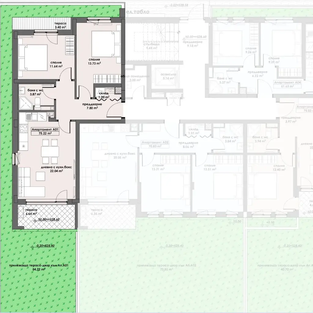
Апартамент 1, Етаж 1 (Блок 1)
3-стаен / Жилищна РЗП 86.19 кв.м + Двор 54.22 кв.м (1,950 €/кв.м жилищна РЗП)
Жилище с две спални, дневна с кухненски бокс, една баня, преддверие, две тераси, склад и самостоятелен двор.
Цената включва идеални части от поземления имот.
Двор : 54.22 кв.м
Етаж : 1
Изложение : Юг-Запад-Север
Застроена площ : 75.22 кв.м
Общи части : 10.97 кв.м
РЗП : 86.19 кв.м

