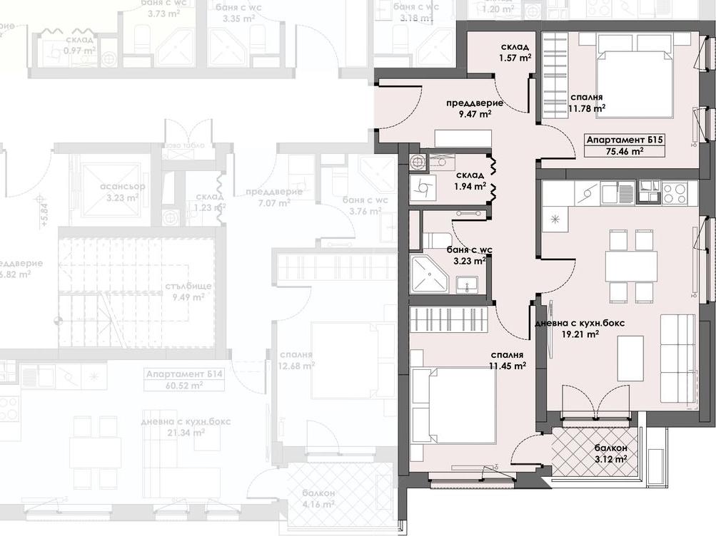
Апартамент 15, Етаж 3 (Блок 2)
3-стаен / РЗП 85.50 кв.м
Жилище с две спални, дневна с кухненски бокс, една баня, преддверие, два склада и балкон.
Цената включва идеални части от поземления имот.
Изложение : Север-Изток
Етаж : 3
Застроена площ : 75.46 кв.м
Общи части : 10.04 кв.м
РЗП : 85.50 кв.м

