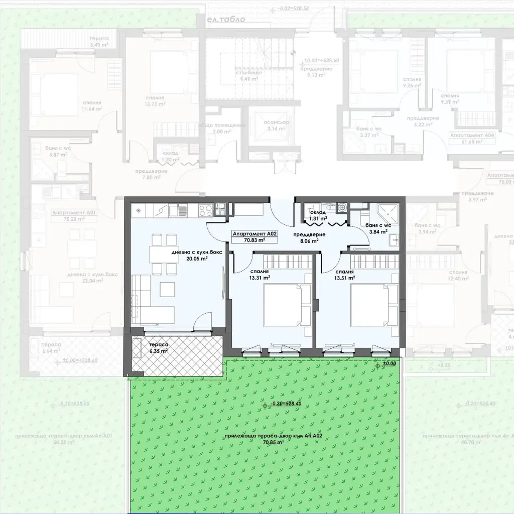
Апартамент 2, Етаж 1 (Блок 1)
3-стаен / Жилищна РЗП 81.16 кв.м + Двор 70.85 кв.м
Жилище с две спални, дневна с кухненски бокс, една баня, преддверие, тераса, склад и самостоятелен двор.
Цената включва идеални части от поземления имот.
Двор : 70.85 кв.м
Етаж : 1
Изложение : Юг
Застроена площ : 70.83 кв.м
Общи части : 10.33 кв.м
РЗП : 81.16 кв.м

