Преминете към съдържание

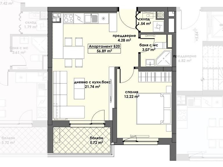
Апартамент 20, Етаж 3 (Блок 2)

https://www.belstroy.bg/web/image/product.template/3284/image_1920?unique=94c6961

2-стаен / РЗП 64.46 кв.м

Жилище с една спалня, дневна с кухненски бокс, една баня, преддверие, склад и балкон.

Цената включва идеални части от поземления имот.

0.00 € 0.0 EUR 0.00 €

This combination does not exist.

Двустаен


   Изложение : Изток

​   Етаж : 3

​   Застроена площ : 56.89 кв.м

   Общи части : 7.57 кв.м

   РЗП : 64.46 кв.м