Преминете към съдържание

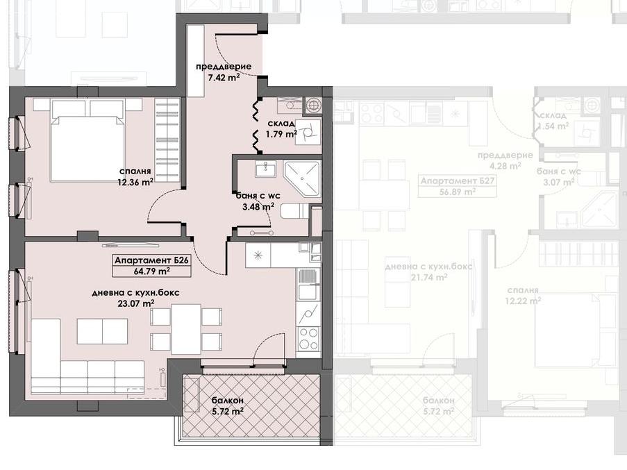
Апартамент 26, Етаж 4 (Блок 2)

https://www.belstroy.bg/web/image/product.template/3290/image_1920?unique=94c6961

2-стаен / РЗП 73.41 кв.м

Жилище с една спалня, дневна с кухненски бокс, една баня, преддверие, склад и балкон.

Цената включва идеални части от поземления имот.

0.00 € 0.0 EUR 0.00 €

This combination does not exist.

Двустаен


   Изложение : Юг-Изток

​   Етаж : 4

​   Застроена площ : 64.79 кв.м

   Общи части : 8.62 кв.м

   РЗП : 73.41 кв.м