Преминете към съдържание

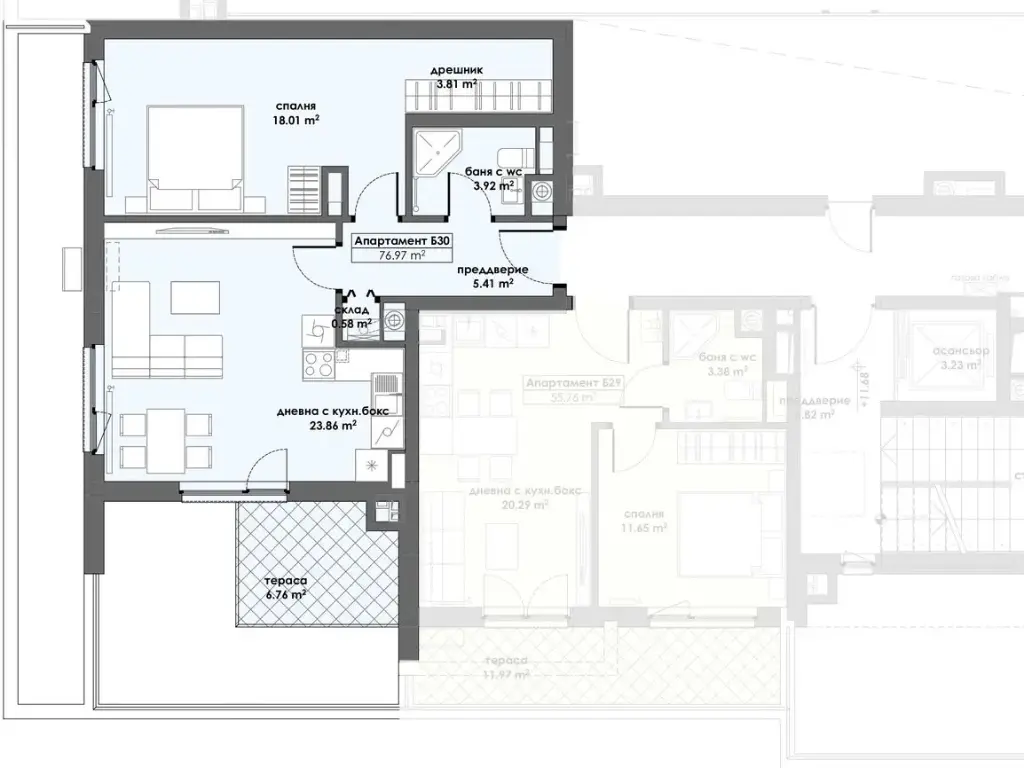
Апартамент 30, Етаж 5 (Блок 2)

https://www.belstroy.bg/web/image/product.template/3294/image_1920?unique=94c6961

2-стаен / РЗП 87.22 кв.м

Жилище с една спалня с дрешник, дневна с кухненски бокс, една баня, преддверие, склад и тераса.

Цената включва идеални части от поземления имот.

166,864.00 € 166864.0 EUR 166,864.00 €

This combination does not exist.

Двустаен


   Изложение : Юг-Изток

​   Етаж : 5

​   Застроена площ : 76.97 кв.м

   Общи части : 10.25 кв.м

   РЗП : 87.22 кв.м