Преминете към съдържание

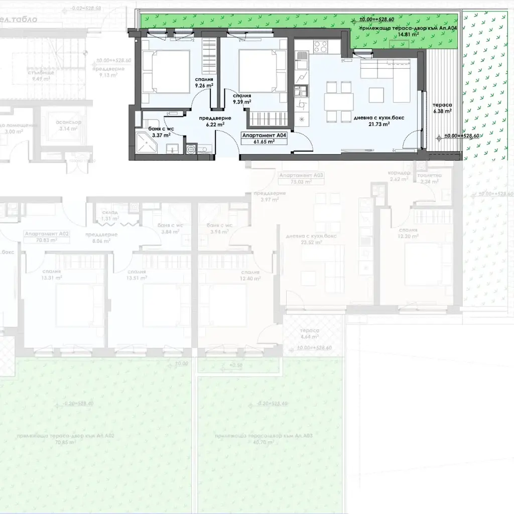
Апартамент 4, Етаж 1 (Блок 1)

https://www.belstroy.bg/web/image/product.template/3298/image_1920?unique=94c6961

3-стаен / Жилищна РЗП 70.64 кв.м + Двор 14.81 + мазе кв.м (1,950 €/кв.м жилищна РЗП)

Жилище с две спални, дневна с кухненски бокс, една баня, преддверие, мазе, тераса и самостоятелен двор.

Цената включва идеални части от поземления имот.

142,404.00 € 142404.0 EUR 142,404.00 €

This combination does not exist.

Тристаен


   Двор : 14.81 кв.м

​   Етаж : 1

   Изложение : Север-Изток

​   Застроена площ : 61.65 кв.м

   Общи части : 8.99 кв.м

   РЗП : 70.64 кв.м