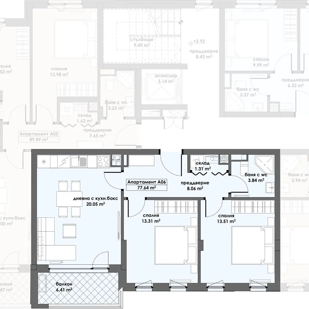
Апартамент 6, Етаж 2 (Блок 1)
3-стаен / Жилищна РЗП 88.96 кв.м
(1,950 €/кв.м жилищна РЗП)
Жилище с две спални, дневна с кухненски бокс, една баня, преддверие, склад и балкон.
Цената включва идеални части от поземления имот.
Изложение : Юг
Етаж : 2
Застроена площ : 77.64 кв.м
Общи части : 11.32 кв.м
РЗП : 88.96 кв.м

