Преминете към съдържание
Начало
За проекта
Имоти
Блок 2
Апартаменти
Гаражи
Блок 1
Апартаменти
Гаражи
Паркоместа
Блок 3
Гаражи
Разгледайте всички имоти
Галерия
За нас
Новини
0
+359 887 214 765
Свържете се с на
с
0
Начало
За проекта
Имоти
Галерия
За нас
Новини
+359 887 214 765
Свържете се с на
с
EUR Price List
Всички продукти
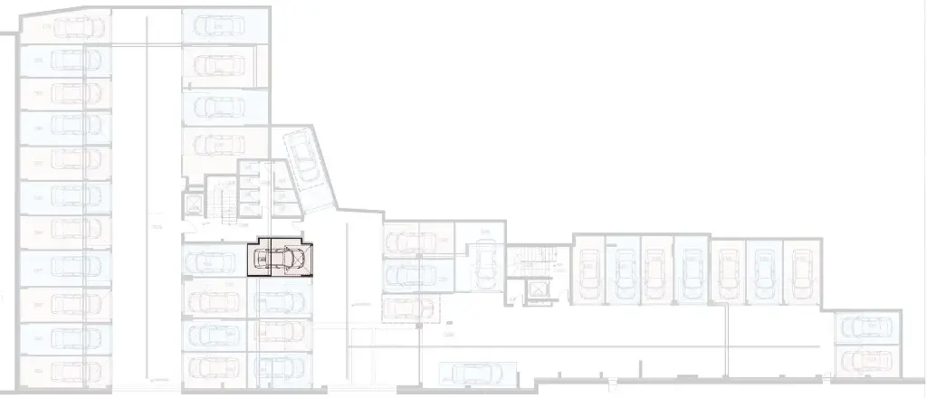
Гараж А4
Продаден
Гараж А4
https://www.belstroy.bg/shop/garage-a4-3344
https://www.belstroy.bg/web/image/product.template/3344/image_1920?unique=94c6961
Застроена площ - 18.77 кв. м
Застроена площ - 18.77 кв. м
26,840.00
€
26840.0
EUR
26,840.00
€
This combination does not exist.
добавете в количката
Свържете се с нас