Преминете към съдържание
Начало
За проекта
Имоти
Блок 2
Апартаменти
Гаражи
Блок 1
Апартаменти
Гаражи
Паркоместа
Блок 3
Гаражи
Разгледайте всички имоти
Галерия
За нас
Новини
0
+359 887 214 765
Свържете се с на
с
0
Начало
За проекта
Имоти
Галерия
За нас
Новини
+359 887 214 765
Свържете се с на
с
EUR Price List
Всички продукти
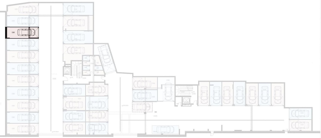
Гараж Б9
Продаден
Гараж Б9
https://www.belstroy.bg/shop/garage-b9-3330
https://www.belstroy.bg/web/image/product.template/3330/image_1920?unique=94c6961
Застроена площ - 22.92 кв. м
Застроена площ - 22.92 кв. м
0.00
€
0.0
EUR
0.00
€
This combination does not exist.
добавете в количката
Свържете се с нас